商铺名称:上海著跃电子科技有限公司
联系人:王士东(先生)
联系手机:
固定电话:
企业邮箱:wsdflydream@163.com
联系地址:上海市浦东新区金豫路100号3幢607室
邮编:200127
联系我时,请说是在快能纺机网上看到的,谢谢!
产品参数 | |||
---|---|---|---|
加工定制 | 否 | ||
适用门扇尺寸 | 950mm*2100mm | ||
承受门重 | 105kg | ||
门扇最大开启 | 120° | ||
外观尺寸 | 308mm*146mm | ||
产地 | 日本 | ||
是否定位 | 不定位 | ||
力度 | 可调 | ||
可售卖地 | 全国 | ||
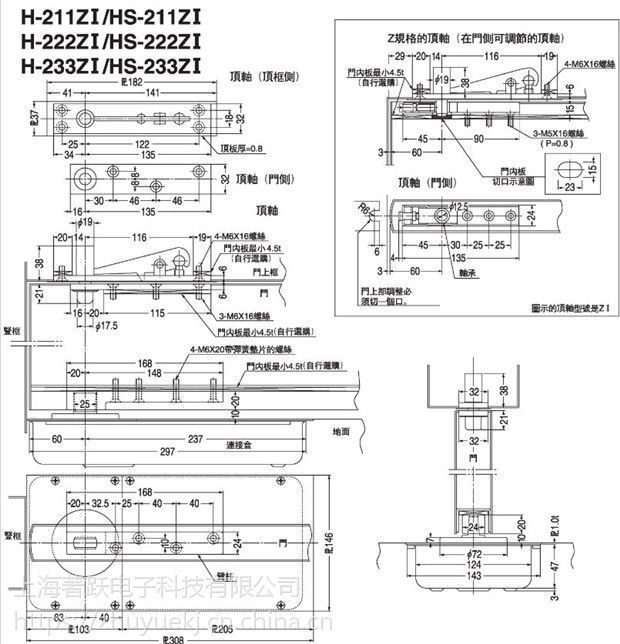
型号 | H-222 |
日本NEWSTAR 200系列地弹簧概述:
? ?■地弹簧的厚度轻薄,适合安装于薄型地板
? ?■闭锁位置在安装门后也可进行简易开闭速度的调整
? ?■2个调整伐可以简易的调整开闭速度
? ?■内部结构经过特别的设计,可 坚实
? ?■也可利用Z型顶轴,在上下轴对准中心线时,可通过顶轴进行调整
型号参数:
? ? 日本NEWSTAR(NEWSTAR)200系列无止动型地弹簧:
? ? ? ? H-211 ZI(门体尺寸:900*2100,承重:70)
? ? ? ? H-222 ZI(门体尺寸:950*2100,承重:105)
? ? ? ? H-233 ZI(门体尺寸:1050*2400,承重:150)