天津中蓝混流泵QHB系列流量大扬程高生产厂家供应报价
天津中蓝混流泵QHB系列流量大扬程高生产厂家供应报价
产品价格:¥1(人民币)
  • 规格:900QHB-40
  • 发货地:天津市津南区中兴道15号
  • 品牌:
  • 最小起订量:1台
  • 免费会员
    会员级别:试用会员
    认证类型:企业认证
    企业证件:通过认证

    商铺名称:天津中蓝泵业有限责任公司

    联系人:赵立增(先生)

    联系手机:

    固定电话:

    企业邮箱:07@tjzhonglan.cn

    联系地址:津南经济开发区(东区)中兴道15号

    邮编:300350

    联系我时,请说是在快能纺机网上看到的,谢谢!

    商品详情

       潜水混流泵

       潜水混流泵是传统的水泵电动机组的更新换代产品,驱动水泵的电动机是干式全封闭潜水三相异步电动机,潜水混流泵可长期浸入水中运行,具有传统机组一系列的优点。

          潜水混流泵是传统的水泵电动机组的更新换代产品,驱动水泵的电动机是干式全封闭潜水三相异步电动机,潜水混流泵可长时间浸入水中运转,具有传统机组一系列的优点。

          因为电机与水泵构成一体,现场设备便利、便利,同传统机组比较可节省95%设备时间。

          因为电机潜入水中运转,电机冷却条件好,泵站内无高温,噪音低,可建成地下泵站,保持地面环境面貌,大大简化泵站的土工及建筑结构工程,削减设备面积,节省工程造价 30 ~ 40% 。

          潜水电机选用两层、三重机械密封及辅佐密封结构, F级耐温155℃绝缘,防护等级为 IP68。且在电机内设置密封走漏、绕组和轴承升温检测设备。

          检测信号会集反馈于电控柜的监控器内,操作便利,易于实现自动操控及远传操控。

          潜水混流泵输送水质为原水或轻度污水,其最高输送液体温度为50℃,输送介质的PH值为4~10,输送介质的容积比在2%以下,介质的密度小于1.2*103kg/m3。

      潜水混流泵主要用在工况船坞、城市给排水、农田排灌、电站给排水。



       

      潜水电泵的潜水电机置于泵的上方,潜水电机为干式结构,选用F级绝缘,可靠的机械密封及辅佐密封,并设有走漏和内部绕组、轴承温升保护设备,装备操控柜、运转安全可靠,运载水质和环境习惯广、叶片可调、工况规模大。

          从进水口方向看,叶轮为逆时针方向旋转。

          当电机功率在315KW以下时,电压选用380V或600V,当电机功率在315KW以上时,电压选用6KV或10KV。

          潜水混流泵是一种“拉出”式结构泵,在查看和拆卸叶轮和轴封时,毋须将与泵体相连接的管路拆开。装有精细加工的泵轴,装有稀油光滑的轴承,在填料函盖中装有防护轴套。轴承箱的油位,可由恒位油杯来操控。

          泵体的支脚,可承受来自管路的任何载荷,并直接传递给基础。这样,转子不会因为泵承受受载荷而发生曲折,然后确保轴承的最佳使用寿命。

          因为较大的过流面积,然后削减阻塞。

          泵的旋转方向,从驱动端看,为顺时针方向。

          动力驱动可选用电动机或内燃机。

          泵设备上能够装备完好的放气设备,有利于吸入管路的排气。



      潜水混流泵适用于排灌泵站、大流量、中扬程、运送水质为原水或轻度污水。运送介质温度50度以下,扬程在20米以下操作简略,使用方便,合作安装体系。可建成地下泵站,坚持地上面貌,最适合水位涨落较大的沿江、湖泊区域建站、是处理防洪最完全的方法。

          潜水混流泵开泵前,吸入管和泵内有必要充满液体。开泵后,叶轮高速旋转,其间的液体跟着叶片一同旋转,在离心力的效果下,飞离叶轮向外射出,射出的液体在泵壳分散室内速度逐步变慢,压力逐步添加,然后从泵出口,排出管流出。此时,在叶片中心处因为液体被甩向周围而构成既没有空气又没有液体的真空低压区,液池中的液体在池面大气压的效果下,经吸入管流入泵内,液体就是这样接连不断地从液池中被抽吸上来又接连不断地从排出管流出。


      关于服务

      1我公司提供的免费售前服务

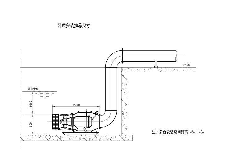
      ①、免费设计方案:根据客户对产品的要求以及用途,为客户提供选型、报价以及为客户提供安装方案和安装尺寸图。

      ②、免费考察现场:由于部分客户对产品及安装方式的不了解或无法描述现场具体情况,对此我公司提供免费的勘察现场服务,避免选型或安装方式出现错误给客户造成不必要的麻烦和损失。

      2我公司提供的免费售后服务

      技术指导安装及服务:因部分客户对现场产品安装不太了解,而造成的不必要麻烦,于是我公司提供免费的电话指导安装(如需到现场指导按时间收费)。

      我们拥有大型室外试验台,在相关电力条件允许范围内,我们可以每台泵都做出水实验,保证水泵性能参数达标。质量过硬、服务同行。

      以上是简单的介绍我公司的产品,如有需求或者想进一步的了解我们的潜水泵敬请来电!期待您的青睐。

       



    0571-87774297