防爆动力检修箱
防爆动力检修箱
产品价格:¥450(人民币)
  • 规格:BXM(D)-T
  • 发货地:浙江温州市
  • 品牌:
  • 最小起订量:1台
  • 免费会员
    会员级别:试用会员
    认证类型:企业认证
    企业证件:通过认证

    商铺名称:乐清市润发电器有限公司

    联系人:徐晶()

    联系手机:

    固定电话:

    企业邮箱:1241478013@qq.com

    联系地址:浙江省温州市乐清市柳市镇

    邮编:325604

    联系我时,请说是在快能纺机网上看到的,谢谢!

    商品详情
      一、(IIB、IIC) 适用范围 
      ◆适用于1区、2区危险场地。 

      ◆适用于ⅡA、ⅡB、ⅡC类,温度组别为T1-T6的爆炸性气体环境。




      二、技术参数
      ■ 执行标准:GB3836.1-2000、GB3836.2-2000、GB3836.3-2000、IEC60079
      ■ 防爆标志: ExedⅡCT6 *ExedⅡBT6
      ■ 额定电压:AC380/220V/50Hz
      ■ 主回路额定电流:60A-250A
      ■ 防护等级:IP55
      ■ 防腐等级:WF1
      ■ 进线口规格:G2"-G3"
      ■ 出线口规格:G11/2" 
      三、产品特点 
      ■ 壳体采用铝合金压铸成型,表面高压静电喷塑;
      ■ 主腔内装塑壳式断路器;
      ■ 电缆或钢管布线;
      ■ 可根据用户要求特制。 
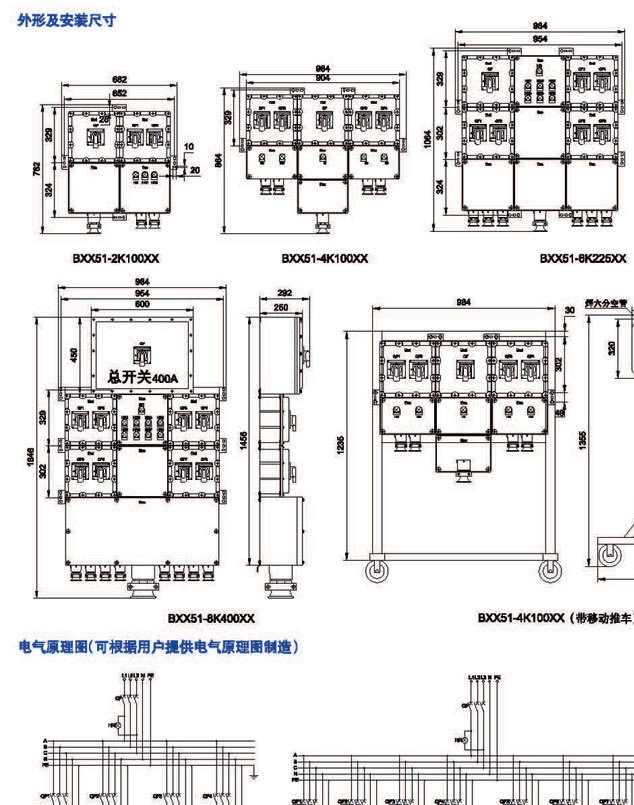
        外形及安装举例
       订货须知
      ■ 订货时应注明插座的数量,对应的电压和电流,进线口的数量,方向及规格;
      ■ 如需要配出线口,请注明方向数量及规格;
      ■ 如带开关请注明开关的电流大小及极数。
      防爆动力插座箱,防爆动力检修箱,防爆检修动力箱







    0571-87774297